- Home
- Departments
- Public Works
- New Public Works Facility
New Public Works Facility
Construction will begin on a new Public Works facility on the Township campus at 688 Sugartown Road in 2025. Please review the linked documents and FAQs below to learn more about the project. The Board accepted a proposal via Bluescope/Gorski Engineering at their meeting on April 14, 2025 to proceed with demolition of the site and construction of the new maintenance garage, office space, salt shed, small storage garage, and fuel station.
- How was the Public Works Facility design developed?
-
Willistown Township contracted with Gorski Engineering for the professional services of development of a design proposal for a Public Works facility. Gorski Engineering was recommended to the Board for this work based upon their proven success in previous, smaller projects at the Township administration building, and work comparable to the project at nearby municipalities. Staff visited a comparable site at Limerick Township and spoke with Limerick Township staff at that site regarding the design and construction of that facility. The firm is highly recommended. The Director of Public Works, Township Manager, and other staff worked closely with Gorski on the design of the new Public Works facility.
- What are the functions of the Public Works building?
-
The Public Works Building is the main operational space for the Public Works department. The department staff, led by the Director of Public Works, oversees maintenance, repair, and safety of Township facilities, fleet vehicles including Police Department vehicles, roads and bridges, parks and preserves, sewer mains and pump stations, and stormwater facilities throughout Willistown Township. A safe and functional building is necessary for proper functioning of this department, the storage of supplies, and maintenance and storage of fleet vehicles and equipment to ensure proper operation and prolong equipment life.
- What's the price of the Gorski construction contract and what's included?
-
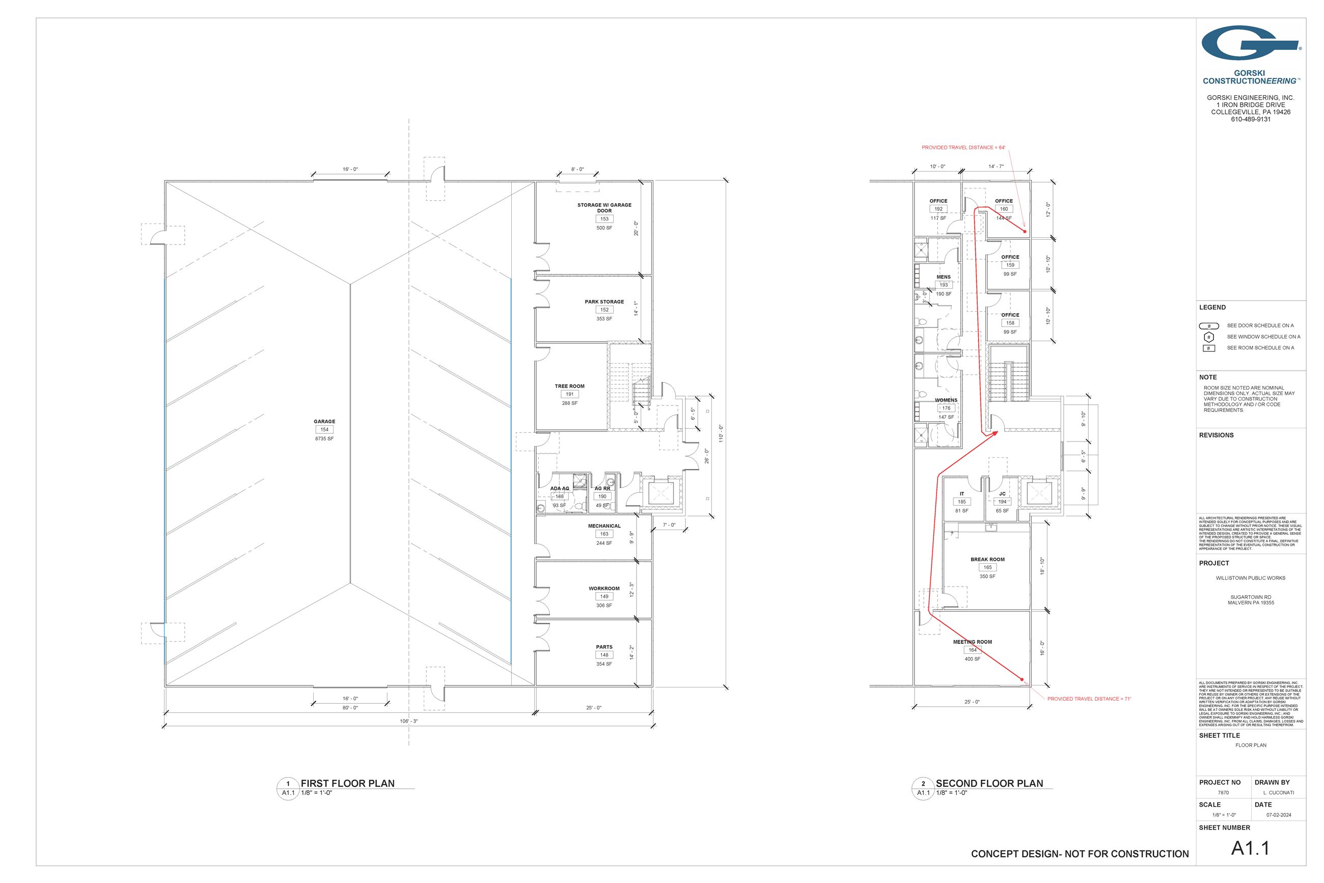
The designed building, a structural steel frame building, includes a drive through maintenance garage with twelve vehicle bays, office space for the Public Works Director, Foreman, and Roadmaster; much needed meeting space; storage space for parts and equipment; and proper bathroom and breakroom facilities. Health and safety features such as shower facilities for PW personnel who have performed hazardous work e.g., sewer trench work; ventilation systems; a sprinkler system; and a trench drain for proper reclamation of runoff are also included in the main structure.
The lump sum fixed price presented by Gorski Engineering via the Sourcewell Cooperative Purchasing program for construction of the building is $6,590,455. Ancillary to the main building but included in the design and total fixed price are: demolition of the current buildings, removal of the underground fuel tanks, installation of a new fuel station with aboveground storage tanks, a salt shed with increased storage capacity, small equipment storage garage, necessary site work, and a stormwater management facility.
- Is this a "no-bid" contract?
-
No. Cooperative purchasing agreements are not a violation of purchasing regulations. A contract via cooperative purchasing is not a “no-bid contract.” The necessary bidding is conducted by the entity which vets the cooperative purchasing contracts. The Township has been a member of Sourcewell, the public procurement organization, since 2011.
- Why use a cooperative purchasing agreement?
-
Cooperating Purchasing exists to streamline public procurement to increase efficiency and lower costs. It has been a trusted method of procurement in Willistown for decades, most commonly through the COSTARS program. Cooperative purchasing eliminates the additional costs of traditional advertisement, which are further described below. A contract can be entered into with a known, firm, and fixed price.
This project in particular will require careful phasing and critical path timing to ensure that the Public Works Department can continue to function fully throughout construction; that the fleet, including police vehicles, will have uninterrupted access to the fuel station; and that emergency supplies, such as road salt, will be continuously available. Use of a single firm to manage the construction, particularly a firm which has been involved throughout the design process, will likely improve the phasing of the work.